




Plot for sale
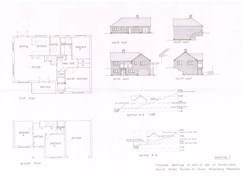
A very well situated parcel of building land with Planning Permission and Reserved Matters approved for the construction of two detached dwellings, situated in a tucked away location within the village of Ruyton Xi Towns.
Plot for sale
Description
A very well situated parcel of building land with Planning Permission and Reserved Matters approved for the construction of two detached dwellings, situated in a tucked away location within the village of Ruyton Xi Towns.
Contact Agent
Smart Picks — Professionals Relevant to This Land
Based on this property's key features, here are the specialists you may want to consult as part of your due diligence: land agents, rural solicitors, environmental consultants, planning consultants and land consultants.

Land Agents
Essential for navigating the land market, finding buyers, and securing the best price.

Rural Solicitors
Significant investment (£150K+) requires legal expertise for conveyancing, title checks, and transaction security.

Environmental Consultants
Environmental factors identified - specialist needed for habitat surveys and compliance.

Planning Consultants
Planning-sensitive site needs expert guidance for applications and development strategy.

Land Consultants
Multiple parcels or complex land structure requires expert analysis for optimal development strategy.
Location
Building Land off Church Street